- АртикулFISH-124661-000
- НаличиеВ наличии
Обратите внимание. Наша компания работает со странами СНГ только через представительство в РФ.
|
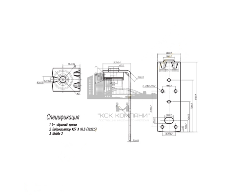
Материал: Оцинкованная сталь 4.6-5.8 |
|
Применение: При монтаже воздуховодов, в качестве поддерживающего элемента для труб и коробов прямоугольного сечения. Используется как держатель для воздуховодов, снижает шум и вибрации, возникающие при передвижении воздушного потока. |
|
Особенности: L-образный монтажный элемент, изготовленный из оцинкованной стали. Имеет виброгаситель (резиновый виброизолятор), позволяет исключить контакт резьбовой шпильки с коробом воздуховода, чем значительно снижает шум и вибрации, создаваемые воздушным потоком. Изделие имеет пазы для крепления к коробу воздуховода без использования сварки. |
|
Аналоги: Скоба fischer для монтажа воздуховодов, Кронштейн L-образный Termoclip с виброгасителем |
|
Производитель: Россия / Китай |
Нет отзывов об этом товаре.
