- АртикулFISH-47390-000
- НаличиеВ наличии
Доставка послезавтра и позже, от 5000 ₽
Обратите внимание. Наша компания работает со странами СНГ только через представительство в РФ.
Обратите внимание. Наша компания работает со странами СНГ только через представительство в РФ.
|
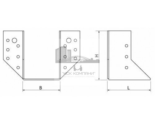
Материал: Оцинкованная сталь |
|
Применение: Опора OBR применяется в каркасном строительстве для возведения горизонтальных каркасов. С помощью опор монтируются опорные лаги для полов, потолков, перекрытий. Возведение деревянных перекрытий с помощью стальных опор это удобный, быстрый и надежный метод. |
|
Особенности: Изготавливается из стали, которую затем оцинковывают. Выполняется в виде литого элемента, который затем сгибают под необходимую форму. Имеются крепежные отверстия разного диаметра. Для крепления данной опоры могут использоваться гвозди или саморезы, если монтаж проводится на деревянную основу; а так же анкерные болты для работы с бетоном. |
|
Аналоги: Нет |
|
Производитель: Россия / Китай |
Отзывов: 0
Нет отзывов об этом товаре.
Похожие товары
Вы недавно смотрели
Болт с шестигранной головкой DIN 931 A4 и неполной резьбой нержавеющий, M24x70 мм
Есть в наличии
870.71 ₽
